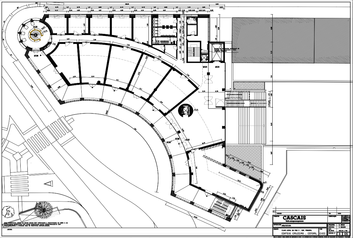
ED. DO CRUZEIRO

DESCRIÇÃO
A Cascais School of Arts & Design vem juntar-se à Academia das Artes, junto ao Edifício Cruzeiro no Monte Estoril, no antigo mercado municipal. Com cursos em Arquitetura e Design de Espaços; Artes Digitais e Multimédia; Moda e Tendências e Design e Comunicação, é a nova aposta na “Vila das Artes”, dentro do projeto de requalificação do icónico Edifício Cruzeiro

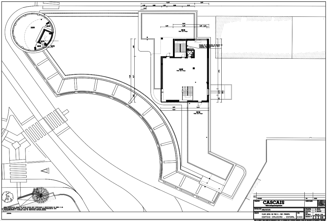
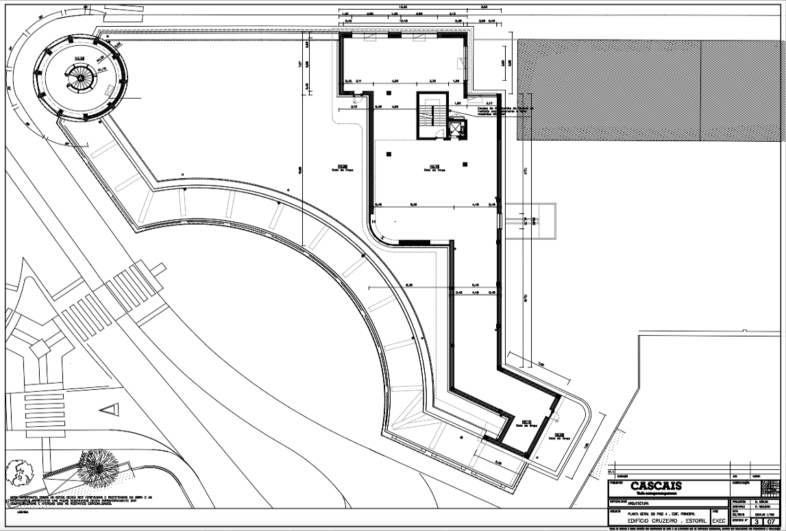
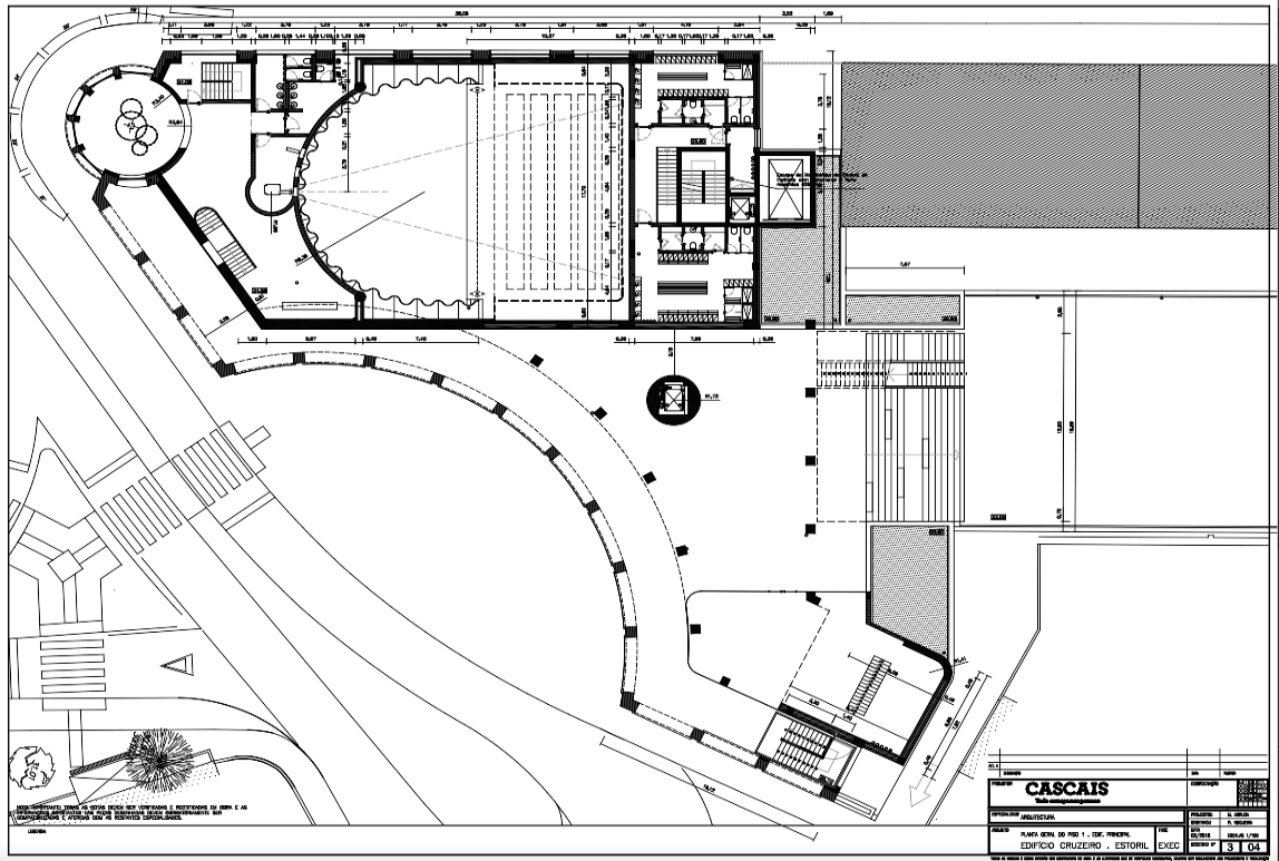
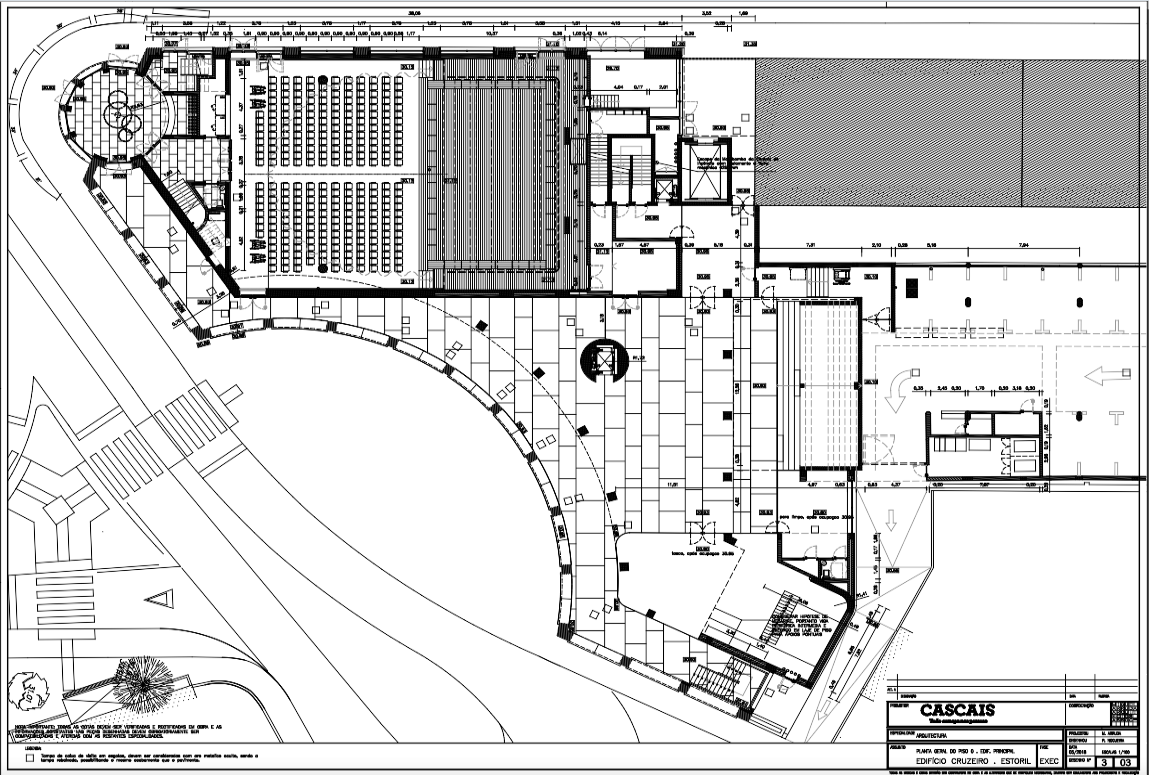
Este projeto prevê a localização do Auditório com diversas valências no primeiro piso e no segundo e terceiro estão previstas predominantemente as atividades letivas e culturais.
FICHA TÉCNICA
Dono de Obra | Câmara Municipal de Cascais
Localização | Lisboa
Área Piso Térreo e Mezzanine | 1474,6m²
Área Escola de Teatro e Multimédia 1º Piso | 1019,04m²
Área Escola de Teatro e Multimédia 2º Piso | 1040,3m²
Coberturas 3º, 4º e 5º Pisos | 650m²
Valor da Empreitada | 7.989.294,44€
Ano de Projeto | 2018
Data de Início da Empreitada | 07 de junho de 2019
Duração da Empreitada | 660 dias

    
Planta 2
Imagem da cozinha
Imagem da Sala
Planta 2
Imagem da cozinha
Imagem da Sala
contador de acessos